Grosszügig & hell, Nähe Birsköpfli / Rhein

Bruttomiete CHF 2’190 Wohnung 4.5 Zimmer Per sofort Nähe Birsköpfli

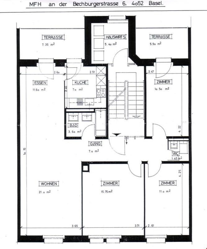
Beschreibung

Grosszügig & hell, Nähe Birsköpfli / Rhein

Per sofort oder nach Vereinbarung vermieten wir im Breitequartier in der Nähe vom angesagtem "Birsköpfli" diese helle und grosszügige 4.5-Zimmerwohnung mit nachfolgendem Ausbaustandard:

  • Küche mit Geschirrspüler
  • Bad/WC
  • separates WC
  • Eigenes Réduit mit Waschmaschine und Tumbler
  • sonniger Balkon auf der ruhigen Hinterhofseite
  • Kellerabteil

Die Liegenschaft verfügt über keinen Lift.

Die Bus- und Tramstation 'Breite' sowie diverse Einkaufsmöglichkeiten befinden sich in unmittelbarer Nähe.

Bitte beachten Sie, dass es sich bei den Fotos um ein typähnliches Objekt handeln kann.

Haben wir Ihr Interesse geweckt?
Wir freuen uns auf Ihre Kontaktaufnahme. 

Hauptangaben

  • AdresseBechburgerstrasse 6
    4052 Basel, BS
  • Art | VerwendungWohnung | Wohnen
  • Anzahl Zimmer4.5
  • Verfügbarkeitsofort

Mietpreis (Monat)

  • NettomieteCHF 1’850
  • NebenkostenCHF 340
  • BruttomieteCHF 2’190

Grössenangaben

  • Stockwerk 3
  • Anzahl Badezimmer 1
  • Anzahl Zimmer 4.5
  • Anzahl Gäste-WCs 1

Ausstattung

  • Balkon

Ausstattung (Technik)

  • Kabelfernsehen
  • Wäschetrockner
  • Waschmaschine

Weiteres

  • Kinderfreundlich

Weiterempfehlen